Global Steel E.T. Projects
Fosse Lavoro per Officine
e Centri di Manutenzione
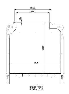
Le fosse lavoro System Up sono progettate per facilitare le operazioni quotidiane in officina, garantendo ergonomia, accessibilità e massima sicurezza. Vengono realizzate in acciaio autoportante e consegnate pronte all’installazione, con la possibilità di essere configurate in base alle esigenze operative specifiche. Che si tratti di officine meccaniche, carrozzerie, centri assistenza o flotte aziendali, le nostre fosse rappresentano una soluzione versatile e robusta per ogni contesto.
Soluzioni Modulari per Ogni Tipo di Intervento
Fosse Standard in Pronta Consegna
Disponiamo di una linea di fosse in misure standard, realizzate secondo le normative europee e disponibili per la spedizione immediata. Questa opzione è ideale per clienti che hanno tempi stretti o layout consolidati.
Grazie alla nostra linea produttiva ad alta efficienza, possiamo garantire:
- tempi di produzione ridotti
- consegne rapide con mezzi di trasporto standard
- installazioni semplificate e minimamente invasive
Global Steel E.T. Projects
Progettazione su Misura e Personalizzazione Completa
Il nostro ufficio tecnico interno affianca il cliente sin dalla fase progettuale, fornendo disegni tecnici dettagliati, soluzioni su misura e assistenza in ogni fase dell’installazione.
Ogni officina ha le sue caratteristiche: per questo offriamo anche la possibilità di realizzare fosse lavoro su misura, personalizzabili per dimensioni, accessori e dotazioni tecniche.


Vantaggi delle soluzioni personalizzate:
Adattabilità a spazi complessi o fuori standard.
Predisposizione per accessori specifici
Ottimizzazione della logistica interna dell’officina
Rispetto della normativa UNI 9721:2009
Accessori Integrabili per Lavori in Sicurezza
Anche le fosse lavoro possono essere accessoriate per migliorarne l’usabilità e l’ergonomia, con soluzioni come:
scale di accesso e di emergenza
impianti di illuminazione e prese elettriche integrate
impianto aria compressa
guide portanti per sollevatori
pavimentazioni antiscivolo
pozzetti raccolta acque con pompa di svuotamento
verniciatura interna grigio chiaro per riflettere meglio la luce
coperture manuali o motorizzate (opzionali)
Global Steel E.T. Projects
Una Scelta Intelligente per la Tua Officina
Le fosse lavoro prefabbricate System Up rappresentano un investimento efficiente e duraturo, progettate per semplificare le attività quotidiane e migliorare le condizioni operative del personale tecnico.
Tutte le nostre fosse sono:
prefabbricate e autoportanti
consegnate con documentazione tecnica e garanzia
realizzate in conformità con i più alti standard qualitativi
Fosse Lavoro per Officine e Centri di Manutenzione
Soluzioni Modulari
Vuoi ottimizzare la produttività della tua officina con una fossa lavoro efficiente e su misura?



